The most powerful FREE software on the market, for Timber Roofs!
Create your detailed roof in a couple of minute!

Powerful and free of costs: Roof Wizard (Assistant) for an easy roof creation with a large Floorplan and Roof shape choice
Control of main timber construction: Rafters, Purlins (Base/Inferior, Middle and Ridge purlins), Collar ties/beams, etc.
Management of light wooden construction: battens/counter-battens and boarding
Input details as HAP (Height Above Plate) parameters to define Purlin position according with Rafters
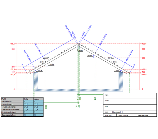
Technical drawing of Roof Profile Elevations

  • Easy and Innovative 3D working mode
  • Automatic Sky Windows / Chimneys input and adjustment of wood framework
  • Easy and powerful Roof Assistant (Wizard)
  • Automatic Technical Drawing of roof profile elevation
  • Carpenter timber list
  • Timber list computation of full structure
  • Automatic dimensions of Roof Profile Elevation

Download Liberta, it’s FREE!